Oststadtschule
Danziger Straße 30, 71638 Ludwigsburg
Erweiterung
Projektdaten
Bauherrin: Stadt Ludwigsburg
Konzept, Projektsteuerung: Fachbereich Hochbau und Gebäudewirtschaft
Entwurf, Planung und Bauleitung: Lanz Schwager Architekten, Konstanz
Baukosten: 9,8 Millionen Euro
Projekt ruht
Projektbeschreibung
Steigende Schülerzahlen
Der erste Bauabschnitt der Oststadtschule (zweizügige Grundschule mit Erweiterungspotential) wurde im Juni 2001 in Betrieb genommen. Nach den aktuellen Prognosen werden zukünftig deutlich mehr Schüler die Oststadtschule besuchen. Mit dem Anstieg der Schülerzahlen wird es auch zu einer Steigerung der zu betreuenden Kinder im Rahmen der Schulkindbetreuung und ebenfalls zu einer Teilnahme am Mittagessen kommen. Nach dem Beschluss des Raumprogramms durch den Gemeinderat am 24.01.2018 wurde mit der Planung begonnen.
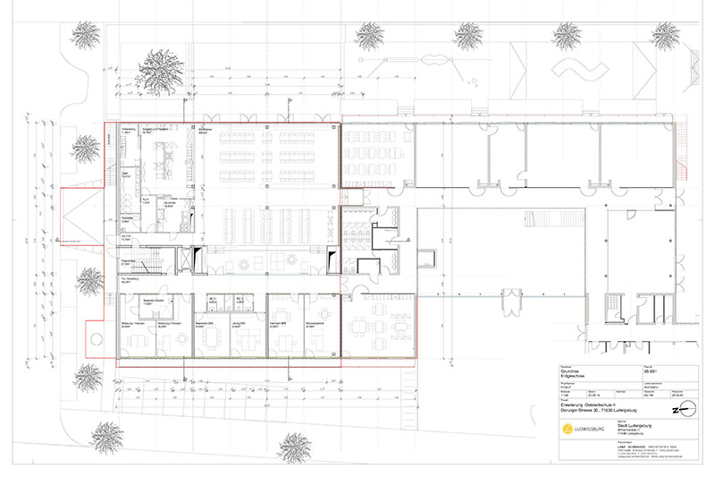
Einzügige Erweiterung
Der Erweiterungsbau entspricht dem zweiten Bauabschnitt gemäß Wettbewerbsplanung. Die 1-zügige Erweiterung verfügt über 6 Unterrichts- und Ganztagsräume, Inklusionsräumlichkeiten, Team- und Besprechungsräume, Anlieferungs- und Ausgabeküche und eine Mensa mit circa 300 Quadratmetern. Die Mensa versorgt die gesamte Schule im Zweischichtbetrieb. Im Obergeschoss befindet sich weiterhin ein großzügiger Lernflur, der multifunktional genutzt werden kann.
Planung
Im Zuge der Planung wurde der beinahe 20 Jahre alte Bestand neu begutachtet. Unter anderem werden die Fluchtbalkone ertüchtigt, eine neue außenliegende Fluchttreppe wird an der Südseite angebaut, die Lautsprecheranlage wird instandgesetzt und Anbau und Bestand erhalten eine flächendeckende Brandmeldeanlage. Die Spielmöglichkeiten im Schulhof werden erweitert, zu dem bestehenden Klettergerüst kommt eine Trampolin-Anlage und ein Multifunktionsspielgerät. Im Zuge der Haushaltsberatungen 2020 wurde der Fertigstellungstermin auf September 2024 verschoben.


